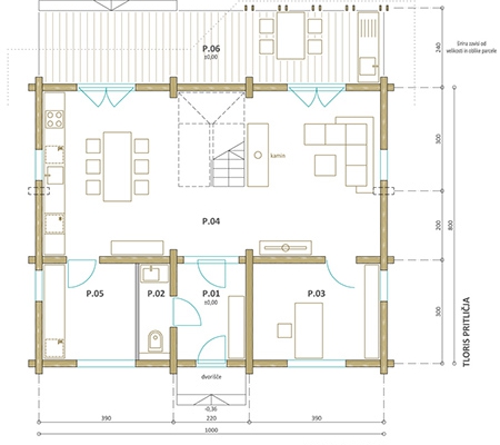
Manjša hiška, velikega udobja ter sodobnega izraza. Družinska hiša za vse, ki iščejo svoj dom nekoliko stran od mestnega vrveža.
Srce hiše je osrednji bivalni prostor s kaminom, ki nudi toplo in varno zavetje.
| Oznaka | Namembnost | Površina v m2 (notranja) | Površina v m2 (zunanja) |
|---|---|---|---|
| P | PRITLIČJE | ||
| P.01 | predprostor | 5,50 | |
| P.02 | sanitarije | 2,50 | |
| P.03 | delovna soba | 10,50 | |
| P.04 | dnevno bivalni prostor s stopniščem | 47,00 | |
| P.05 | utility/kotlovnica | 7,50 | |
| P.06 | terasa | 19,50 | |
| P skupaj | 73,00 | 19,50 | |
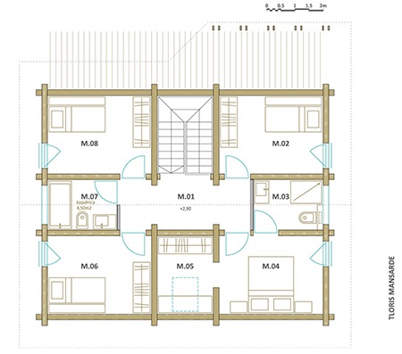
| M | MANSARDA | ||
| M.01 | hodnik s stopniščem | 13,00 | |
| M.02 | otroška soba | 10,50 | |
| M.03 | kopalnica | 4,50 | |
| M.04 | spalnica | 10,50 | |
| M.05 | garderoba | 5,50 | |
| M.06 | otroška soba | 10,50 | |
| M.07 | kopalnica | 4,50 | |
| M.08 | otroška soba | 10,50 | |
| P+M skupaj | 142,50 | 19,50 |








